de
en
Schliessen
Detailsuche
Bibliotheken
Projekt
Impressum
Datenschutz
Detailsuche
Schnellsuche:
OK
Ergebnisliste
Titel
Titel
Inhalt
Inhalt
Seite
Seite
Im Dokument suchen
Experimentelle Untersuchungen zum Alterungsverhalten von Kathodenwerkstoffen für[...]
Anhang
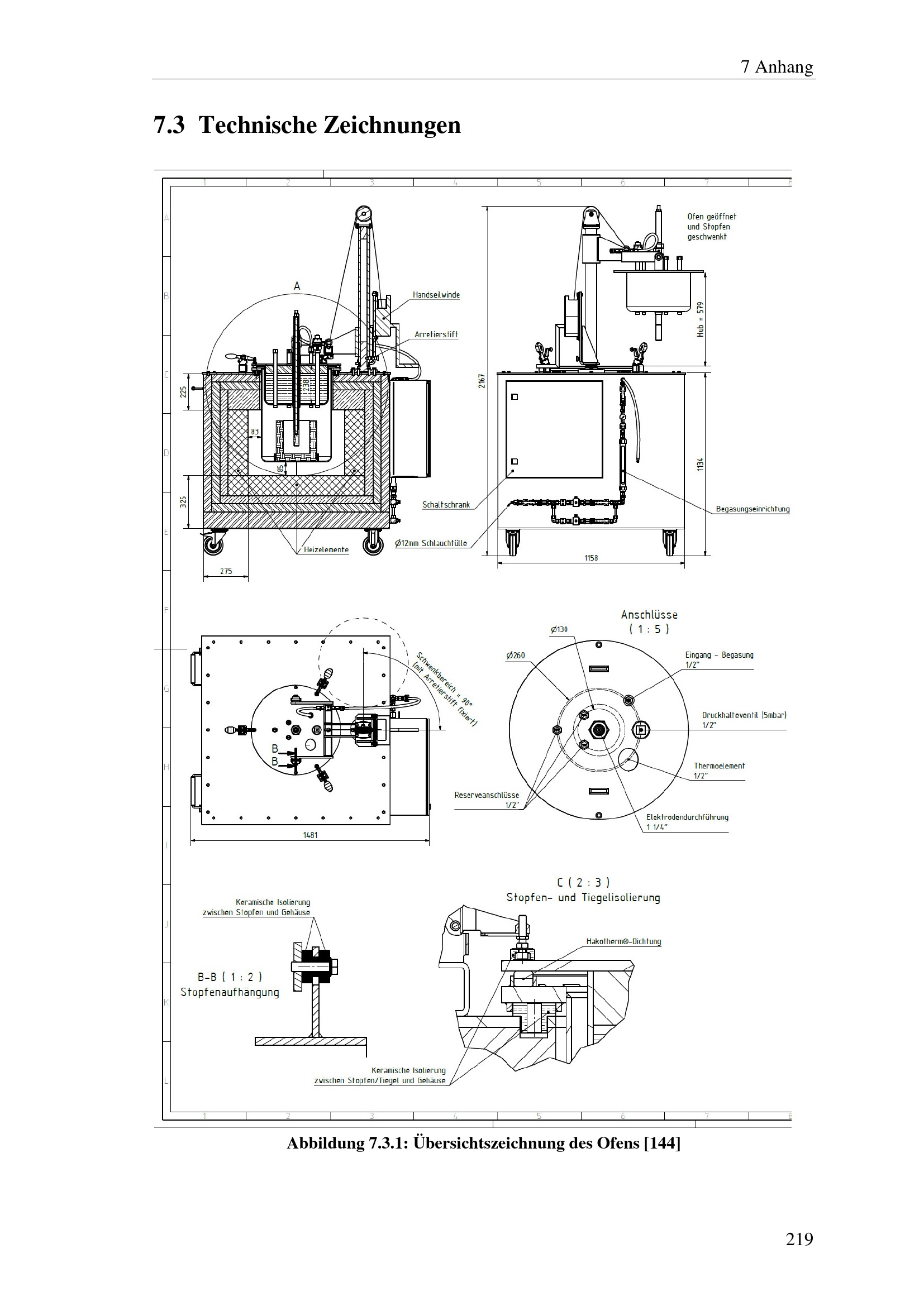
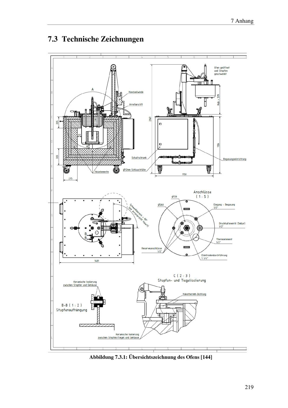
7.3 Technische Zeichnungen
Wird geladen ...
Dissertation
Experimentelle Untersuchungen zum Alterungsverhalten von Kathodenwerkstoffen für die Aluminiumelektrolyse unter Berücksichtigung eines variablen Energieeintrags / vorgelegt von Henry Pusch
Entstehung
Wuppertal
2023
JPEG-Download
verfügbare Breiten
JPEG groß
JPEG original
Seiten an
Seiten aus